^ Top ^

Znajdź nieruchomość

Nasi partnerzy

Mieszkanie - Ostróda - Na sprzedaż - Nr oferty: 569655

Cena: 429058

569655

Województwo: Warmińsko-Mazurskie

Miejscowość: Ostróda

Rynek: wtórny

Rok budowy: 2022

Materiał: cegła

Stan: do wykończenia

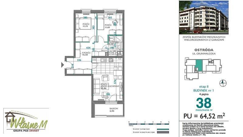
Powierzchnia: 64.52 m2

Ilość pięter: 5

Ilość poziomów: 1

Ilość pokoi: 3

Balkon: loggia

Okna: nowe plastikowe

Powierzchnia piwnicy: 4.74 m2

Garaż: stanowisko parkingowe naziemne

Opis

Mieszkanie na sprzedaż – Ostróda, ul. I Dywizji, blisko centrum, 64,52 m² w stanie deweloperskim, zakup bez podatku PCC. Blok oddany do użytkowania w 2022r. Blok z windą. Powierzchnia: 64,52 m² Liczba pokoi: 3 Piętro: 4 z 5 Balkon: Tak (5,93 m²) Piwnica / komórka lokatorska: Tak (4,74 m²) Stan wykończenia: Stan deweloperski Rok budowy: 2022 Winda: Tak Ogrzewanie: Miejskie, olicznikowane Rozkład pomieszczeń: Pokój dzienny z aneksem kuchennym – 22,86 m² Sypialnia 1 – 11,72 m² Sypialnia 2 – 11,02 m² Przedpokój – 15,33 m² Łazienka – 4,59 m² Balkon – 5,93 m² Piwnica (komórka lokatorska) – 4,74 m² Atuty nieruchomości: ✅ Stan deweloperski – możliwość indywidualnego wykończenia ✅ Nowy budynek z windą ✅ Dwuklatkowy blok – kameralna zabudowa ✅ Balkon z widokiem i przestrzeń na świeżym powietrzu ✅ Ogrzewanie miejskie – olicznikowane, płatność według zużycia ✅ Jasne i ustawne pomieszczenia ✅ Piwnica/komórka lokatorska w cenie ✅ Świetna lokalizacja – blisko centrum, sklepy, szkoły, przystanki Lokalizacja: Blok znajduje się w spokojnej i dobrze skomunikowanej części Ostródy. W pobliżu: sklepy i punkty usługowe szkoły i przedszkola przystanki komunikacji miejskiej tereny zielone i rekreacyjne szybki dojazd do centrum miasta Zainteresowanych zapraszam do kontaktu i umówienia się celem prezentacji. Więcej informacji udzieli Pośrednik Katarzyna Łaciak nr licencji zawodowej 16037 wydanej przez Ministra Infrastruktury, tel. 731-998-882 . Zapraszamy również do biura w Ostródzie, ul. Plac Tysiąclecia PP 8/1

Galeria zdjęć

Masz pytania? Napisz do nas!

Zgodnie z art.6 ust.1 lit. a ogólnego rozporządzenia o ochronie danych osobowych z dnia 27 kwietnia 2016 r. (Dz. Urz. UE L 119 z 04.05.2016) wysyłając formularz wyrażam zgodę na przetwarzanie danych osobowych w celu przygotowania oferty, odpowiedzi i późniejszego kontaktu.

> Treść zgody oraz polityka prywatności <