Znajdź nieruchomość
Lokal użytkowy - Ostróda - Na sprzedaż - Nr oferty: 570362
Cena: 320000 zł
Województwo: Warmińsko-Mazurskie
Miejscowość: Ostróda
Rynek: wtórny
Rok budowy: 1997
Powierzchnia: 53.4 m2
Piwnica / podpiwniczenie: nie
Opis
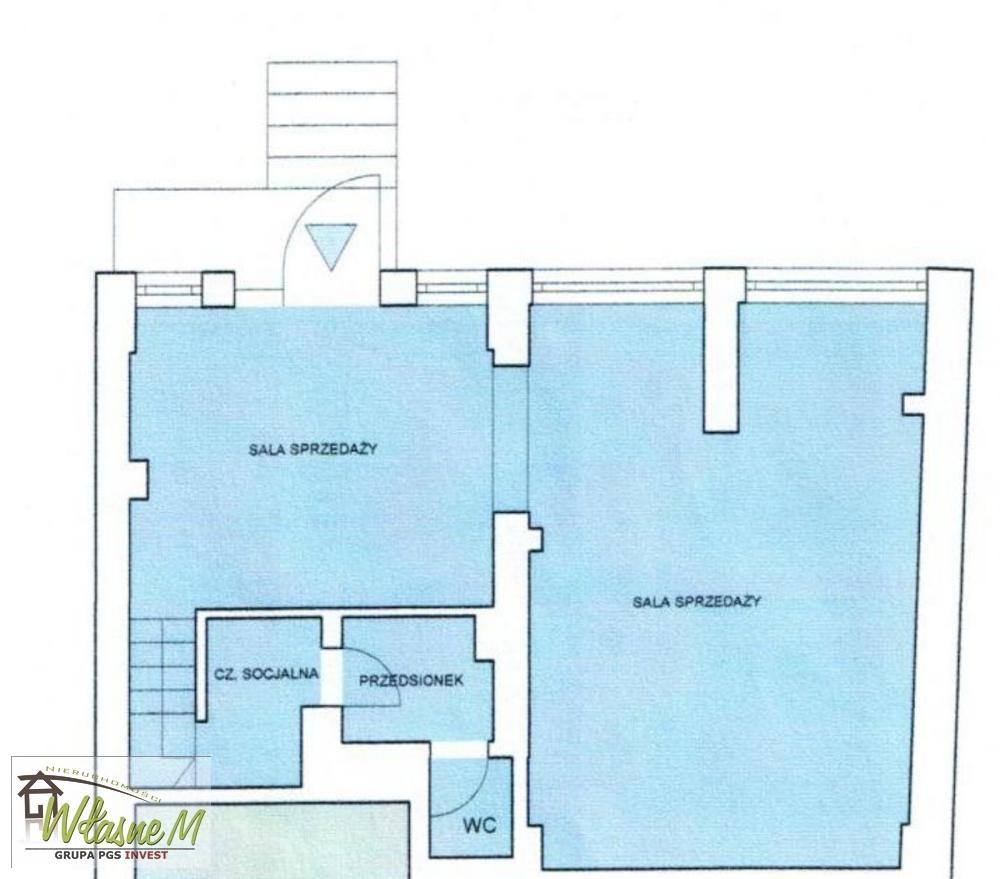
Na sprzedaż lokal użytkowy – Ostróda, ul. Czarnieckiego – ścisłe centrum, wejście od ulicy głównej. Powierzchnia użytkowa lokalu to 53,40 m2. Lokal składa się z dwóch sal sprzedaży , części socjalnej , przedsionka i WC. Położony na parterze. Bardzo dobrze widoczna od ulicy witryna okienna. Ogrzewanie miejskie i ciepła woda także. To idealne miejsce pod usługi i handel. Zapraszamy do oglądania i zakupu. Więcej informacji udzieli Pośrednik Katarzyna Łaciak tel.731-998-882. Zapraszamy również do biura w Ostródzie, przy ul. Plac Tysiąclecia PP 8/1.




